THE HARTMANN THE HARTMANN THE HARTMANN THE HARTMANN THE HARTMANN THE HARTMANN THE HARTMANN THE HARTMANN THE HARTMANN THE HARTMANN THE HARTMANN THE HARTMANN THE HARTMANN THE HARTMANN
PRO BUILDERS since 1994 LLC - PRO BUILDERS OF KC
PRO BUILDERS since 1994 LLC - RYAN T PROPHETER 17845 MO 45 HWY - WESTON MO - 64098 RYAN@PROBUILDERSOFKC.COM 816-386-5500
FACEBOOK - Pro-Builders-since-1994-LLC-642895996098429
TO THE TOP
PRO BUILDERS since 1994 LLC - PRO BUILDERS OF KC
Copyright © 1994 - 2025 - PRO BUILDERS since 1994 LLC - RYAN T PROPHETER 17845 MO 45 HWY WESTON MO 64098 - 816-386-5500
KANSAS CITY HOME BUILDERS ASSOCIATION
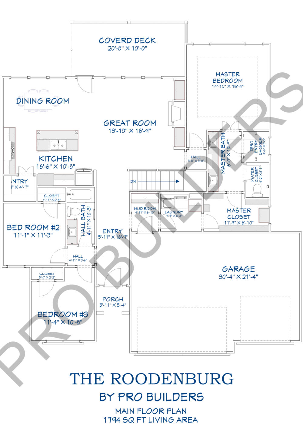
PDF DOWNLOAD PDF DOWNLOAD PLAN:    THE ROODENBURG   DESIGN:   TRUE RANCH STYLE:    OPEN FLOOR PLAN FINISHED AREA:    1795 SF BEDROOMS:    3 BATHROOMS:    2 BASEMENT:    WALKOUT GARAGE SPACES:    3 COVERED PATIO:    10' X 20'   EXTERIOR:    STONE, STUCCO, AND WOOD SIDING  ROOFING:    30 YR COMPOSITION KITCHEN:    CUSTOM CABINETRY, GRANITE TOPS, EATING BAR, APPLIANCES INCLUDING -  DISHWASHER, RANGE & MICROWAVE FLOORING:    HARDWOOD THROUGHOUT MAIN LIVING AREAS - TILE BATHROOMS - CARPETING IN BEDROOMS MASTER SUITE:    BOXED UP CEILING, WALK-IN CLOSET, LARGE WALK-IN SHOWER, WATER CLOSET ROOM GENERAL UPGRADES:    OIL RUBBED BRONZE or BLACK HARDWARE, FAUCETS, AND LIGHT FIXTURES THROUGHOUT PDF DOWNLOAD PDF DOWNLOAD

THE ROODENBURG - TRUE RANCH

@

12435 NW APPALOOSA ST, PLATTE CITY MO - RUNNING HORSE

REALTOR LISTING REALTOR LISTING -TRUE RANCH PLAN -  - 3 BEDROOMS ON THE MAIN FLOOR -  - WE WILL FINISH THE BASEMENT AREA IF DESIRED -
ROODENBURG - HOME ROODENBURG - HOME
ROODENBURG - 12720 ROODENBURG - 12720
ROODENBURG - 13507 ROODENBURG - 13507
ROODENBURG - 12435 ROODENBURG - 12435
MODELS - FLOOR PLANS MODELS - FLOOR PLANS
  • FLOOR PLANS - HOME
  • THE KLIPPENSTEIN - RANCH
  • THE ROODENBURG - RANCH
  • THE KAUFMANN - REVERSE
  • THE HARTMANN - REVERSE
  • THE WESSELMANN - REVERSE
  • THE KALLMEYER - 2 STORY
  • THE CHADRICK - 1 1/2 STORY
  • THE ALTENBURG - RANCH
  • THE MULLER - SPLIT ENTRY
AVAILABLE HOMES AVAILABLE HOMES
  • SPEC HOMES
  • THE KLIPPENSTEIN @ 12710
  • THE ROODENBURG @ 12720
  • THE KLIPPENSTEIN @ 13503
  • THE ROODENBURG @ 13507
  • THE KLIPPENSTEIN @ 16430
  • THE ROODENBURG @ 12435
CUSTOM - DESIGN BUILD CUSTOM - DESIGN BUILD
  • DESIGN BUILD - HOME
  • THE SCANLON
TESTIMONIALS TESTIMONIALS
  • TESTIMONIALS
REMODELING REMODELING
  • REMODEL - HOME
  • MONTICELLO REMODEL
  • WESTON KITCHEN #1
  • WESTON KITCHEN #2
CUSTOM CABINETRY CUSTOM CABINETRY
  • CUSTOM CABINETRY